738 田園風景にある古民家 補修不要
売買
三野町
空き家の状況
| 用途 | 住宅 |
|---|---|
| 構造 | 木造瓦葺平家建 |
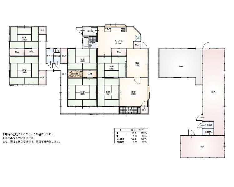
| 間取り | 8DK |
| 床面積 | 179.46平方メートル |
| 建築時期 | 平成元年頃 |
| 空き(予定)時期 | 令和3年4月頃 |
| 補修の要否 | 必要なし |
| 駐車場 | あり(4台) |
| 附帯物件 | 納屋 |
空き家の土地の状況
| 権利 | 所有権 |
|---|---|
| 面積 | 734.68平方メートル |
| 登録地目 | 宅地 |
生活設備状況
| 水道 | 上水道 |
|---|---|
| 電気 | 家屋まで引き込み あり |
| 給湯設備 | 電気 |
| 風呂 | 電気 |
| トイレ | 水洗式(単独浄化槽) |
- 建物(土地込み):希望価格
500万円
- 特記事項
田(40アール)もあり。※売買金額に含んでいない。
農地の賃貸・売買については農地法の要件によります。
- お問い合わせ先
- 谷口工務店(電話:0875-72-3117)










